Innenhofgestaltung Hainbuchenstr./Birkenstr., Dresden

Bauherr EWG Dresden eG
Vorhaben Innenhofgestaltung
Fertigstellungsjahr
2025
Gesamtfläche 5.500 m²
Fotograf Antonio Nowotnick

Die IGC freut sich über abgeschlossene Planungen und den Beginn der Umsetzung dieses wichtigen Projekts zur Weiterentwicklung des Stadtteils Gorbitz. Ziel dabei ist es, die Lebensqualität und das Gemeinschaftsgefühl in den Wohnquartieren zwischen der Hainbuchenstraße und der Birkenstraße nachhaltig zu verbessern.

Unser Planungsansatz bei diesem und weiteren Projekten zielt darauf ab, eine umfassende und übergeordnete Entwicklung der Gorbitzer Quartiere zu realisieren. Diese Vision umfasst u. a. auch die Komplexsanierung der bestehenden Wohnquartiere zwischen der Hainbuchenstraße (Komplexsanierung 2023-2024) und der Birkenstraße (Komplexsanierung 2025-2028).

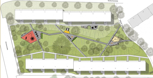
Das Besondere an diesem Vorhaben liegt in der Gestaltung der Freianlage. Der zentrale Gedanke besteht darin, die einzelnen Wohnblöcke durch die Freiflächengestaltung des Innenhofs miteinander zu verknüpfen. Dabei fungieren Stichwege als verbindendes Element und bilden das gestalterische Rückgrat des Projekts. Diese Wege schaffen nicht nur räumliche Verbindungen zwischen den verschiedenen Bereichen, sondern bieten den Bewohnern auch eine klare und intuitive Orientierung.

Das Projekt verfolgt somit eine doppelte Nutzungsintention: Auf der Bewegungsebene wird eine nahtlose und barrierearme Verbindung geschaffen, die den Bewohnern neue Möglichkeiten zur gemeinsamen Nutzung des Freiraums bietet. Auf der sozialen Ebene fördern die drei großzügig gestalteten Spielbereiche die Zusammenkunft und Interaktion der Generationen, gerade in Zeiten der Schnelllebigkeit und Digitalisierung ein wichtiges Element. Deshalb sind diese Orte bewusst als soziale Knotenpunkte konzipiert, an denen Kinder spielen und Erwachsene entspannen und sich austauschen können.

Folgende drei zentrale Elemente prägen die Gestaltung der Freianlage grundlegend:

   1. Stichwege mit Leitsystem sind nicht nur funktionale Verbindungen, sondern auch visuelle und gestalterische Elemente, die den Charakter des gesamten Quartiers beeinflussen.

   2. Drei Spielbereiche sind großzügig ausgelegt und bieten vielfältige Möglichkeiten für Spiel und Bewegung, was insbesondere für Familien einen großen Mehrwert
       darstellt.

   3. Die 3.000 m² große Blumenwiese fügt dem Quartier eine natürliche Schönheit hinzu und trägt zur Biodiversität bei. Sie bietet nicht nur einen angenehmen Anblick, sondern
       schafft auch einen Raum für Entspannung und Naturerfahrung.

Mit der Realisierung dieses Projektes in Gorbitz setzen wir als Ingenieurbüro entscheidende Impulse in der Quartiersentwicklung. Durch die gelungene Integration von Bewegung und sozialer Interaktion schaffen wir gemeinsam mit dem Bauherrn und den Gewerken einen lebendigen, inklusiven und nachhaltigen Raum, der den Gemeinschaftssinn fördert und gleichzeitig die ästhetische und ökologische Qualität des Wohnumfelds aufwertet. - Ein weiterer wichtiger Schritt in unserer gemeinsamen Vision, Gorbitz nicht nur ein neues Erscheinungsbild zu geben, sondern das Image des Dresdner Stadtteils aufzuwerten.